Paletizador PAL-010

Detalhes do Projeto

  • Categoria: Paletizador
  • Velocidade: até 30 caixas por minuto
  • Capacidade: até 60Kg
  • Indústria: Alimentar, Bebidas, Eletrónica, Automóvel, Produtos de Higiene e Limpeza
  • Aplicação: Caixas, Sacas, Garrafões, entre outros

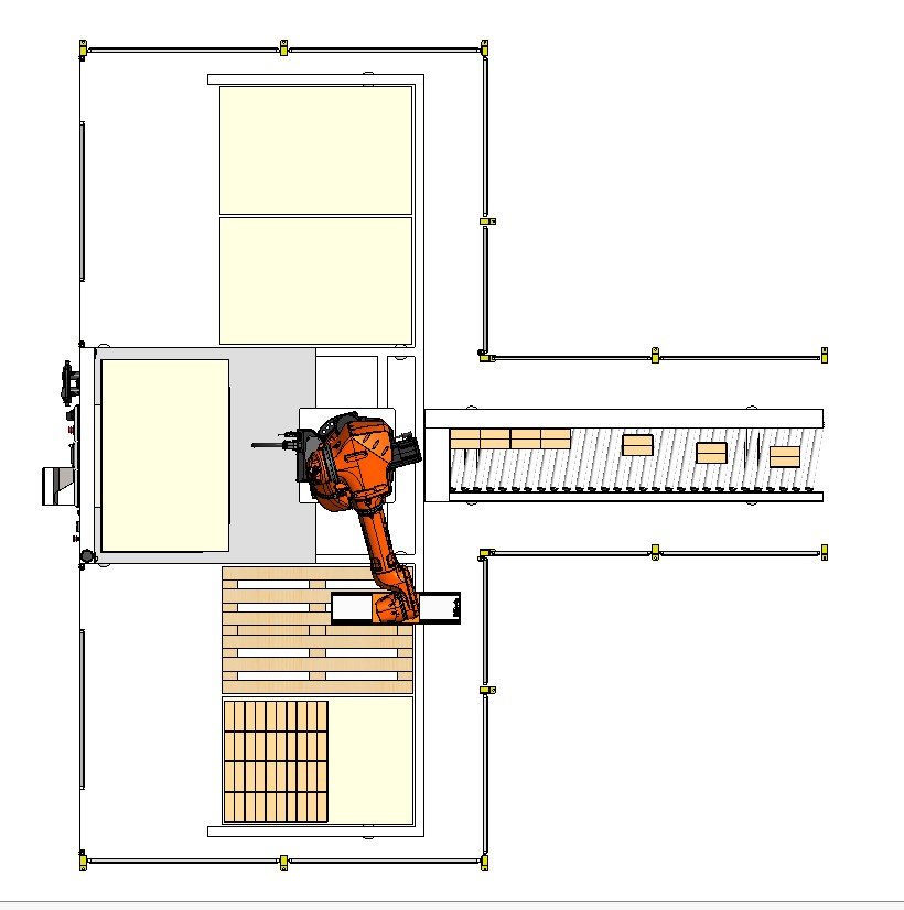
PAL-010

A PAL - 010 é uma célula robotizada concebida para paletizar automaticamente caixas, sacas ou garrafões. Requer apenas um operador (não dedicado) para substituição de paletes. As embalagens são entregues ao robô por um transportador de rolos. O robô realiza a paletização em duas docas duplas de carga independentes, permitindo uma operação de paletização contínua e de autonomia alargada. A célula integra barreiras de segurança fotoelétricas, garantindo a proteção do operador. O padrão de paletização é configurável via HMI, com possibilidade de inclusão de intercalares de cartão entre as várias camadas de paletização.

Características Funcionais PAL-010

Nota: As características apresentadas podem variar e ser ajustadas de acordo com as necessidades específicas de cada cliente.

PARÂMETRO

VALOR

Velocidade de paletização (caixas/minuto) Até 30 embalagens/minutos; até (4 embalagens/ciclo)
Flexibilidade Operacional Múltiplos formatos de embalagens, de paletes e de intercalares; Docas de paletização duplas
Troca de Formato (SMED, 1 OP) < 5 minutos
Número de operadores necessários 1 Operador: Para retirar produto acabado da célula
Área ocupada (aproximada) 24,44 m2 (5,2m X 4,7m)